| 価格 |
980万円 | 交通 | 近鉄名古屋線 「川原町」駅 徒歩16分 |
|---|---|---|---|
| 土地面積/坪数 | 174.00㎡ / 52.63坪 | 所在地 | 三重県四日市市京町 25 |
| 建ぺい率 | 60% | 容積率 | 200% |
売地
| 価格 |
980万円 | 交通 | 近鉄名古屋線 「川原町」駅 徒歩16分 |
|---|---|---|---|
| 土地面積/坪数 | 174.00㎡ / 52.63坪 | 所在地 | 三重県四日市市京町 25 |
| 建ぺい率 | 60% | 容積率 | 200% |
「利回り」は、当該不動産の1年間の予定賃料収入の不動産取得対価に対する割合であり、公租公課その他当該物件を維持するために必要な費用の控除前のものです。
また、予定賃料収入が確実に得られる事を保証するものではありません。

四日市中心部に比較的近く、小中学校、コンビニ、スーパー、各種金融機関などが近くに揃っているため生活至便!
二方道路のため間口も広く建築条件なしの更地!
※地図上の物件位置は近隣に物件が所在することを表すものであり、実際の物件所在地とは異なる場合がございます。
059-327-7207
営業時間:9:00~18:00 / 定休日:日曜日・祝日・年末年始・GW・お盆休み
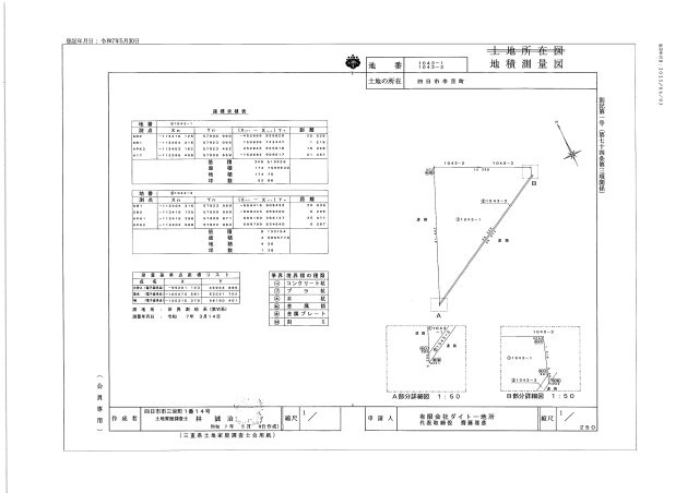
| 所在地 | 三重県四日市市京町 25 | ||
|---|---|---|---|
| 交通 | 近鉄名古屋線 「川原町」駅 徒歩16分 | ||
| 価格 | 980万円 | 坪単価 | 18.62万円 |
| 土地面積 | 174.00㎡ | 建築条件 | 無 |
| 土地権利 | 所有権 | 建ぺい率/容積率 | 60%/ 200% |
| 私道負担面積 | セットバック | ||
| 接道状況 | 三方 (北側 公道4.0m 間口15.3m) (南東側 公道3.5m 間口25.0m) (西側 公道1.8m 間口21.4m) | ||
| 地目 | 雑種地 | 地勢 | 平坦 |
| 土地の権利形態 | 開発面積 | ||
| 都市計画 | 市街化区域 | 用途地域 | 第二種住居地域 |
| その他法令上の制限 | |||
| 国土法届出 | 不要 | 取引態様 | 売主 |
| 現況 | 更地 | 引渡し | 相談 |
| 設備条件 | 公共下水 / 公営水道 / 都市ガス | ||
| その他条件 | |||
| 備考 |
四日市中心部に比較的近く、小中学校、コンビニ、スーパー、各種金融機関などが近くに揃っているため生活至便! 二方道路のため間口も広く建築条件なしの更地! |
||
| 周辺の学校 | |||
| 物件番号 | 94365995 | ||
| 情報公開日 | 2026年1月19日 | 次回更新予定日 | 2026年1月30日 |
| 取引条件の有効期限 | 2026年1月30日 | ||
| 取扱い会社 |
有限会社ダイトー地所 〒510-8014 三重県四日市市富田3丁目13-3 三重県知事(7)第2383号 公益社団法人全日本不動産協会 |
||
059-327-7207
営業時間:9:00~18:00 / 定休日:日曜日・祝日・年末年始・GW・お盆休み
| 所在地 | 物件の住所を表示。(詳細住所は表示していない場合もある) | ||
|---|---|---|---|
| 交通 | 物件(部屋)の沿線駅・バス停を表示。(複数駅・バス停の利用が可能な場合は最大3件まで) | ||
| 間取り/詳細 | 数字は居室数を表示。LDKはそれぞれ「リビング」「ダイニング」「キッチン」、S(納戸)とは「納戸」「サービスルーム」「マルチルーム」「フリールーム」など建築基準法第28条に適合していないため、居室と認められない納戸その他の部分を表す。 | ||
| 価格 | 販売されている住戸の価格を表示。仲介手数料は含まない。 | ||
| 管理費 | 共同住宅の設備その他共用部分の維持および管理をするために必要な費用を表示。 | ||
| 修繕積立金 | 共用部分の修繕のために積立てる金額を表示。 | ||

売地
| 価格 | 589 万円 | ||
|---|---|---|---|
| 土地面積 | 122.31㎡ | 建築条件 | 無 |
| 土地坪数 | 36.99坪 | 坪単価 | 15.92万円 |
| 建ぺい率 | 60% | 容積率 | 200% |
| 住所 | 三重県四日市市東富田町17-5 | ||
| 交通 |
関西本線「富田」駅 徒歩11分 近鉄名古屋線「近鉄富田」駅 徒歩13分 関西本線「富田浜」駅 徒歩11分 |
||
売地
| 価格 | 1,005 万円 ~ 1,175 万円 | ||
|---|---|---|---|
| 土地面積 | 176.32㎡ ~ 223.17㎡ | 建築条件 | 無 |
| 土地坪数 | 53.33坪 ~ 67.5坪 | 坪単価 | 17.41万円 ~ 18.99万円 |
| 建ぺい率 | 60% | 容積率 | 100% |
| 住所 | 三重県四日市市山城町682番27 10号地 | ||
| 交通 |
三岐鉄道三岐線「山城」駅 徒歩14分
|
||
【前面道路含む現地写真】